Mervane architectes

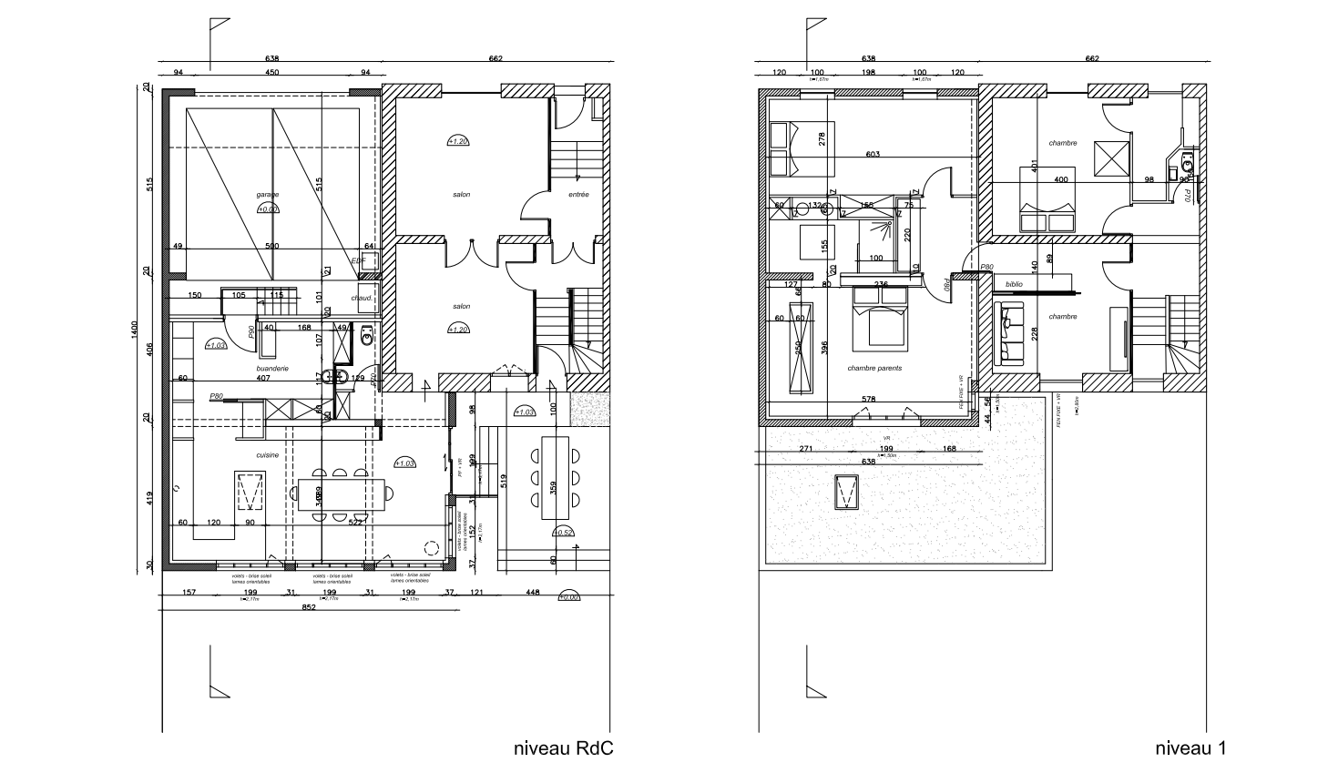
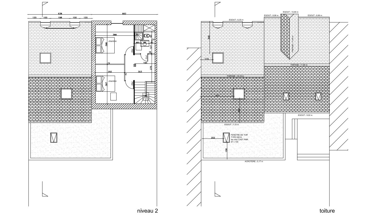
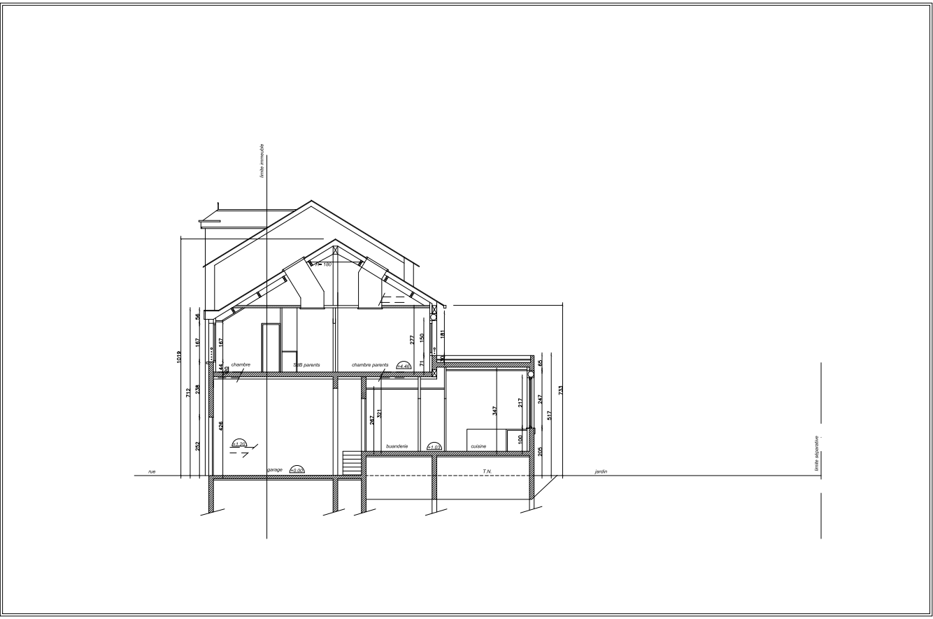
Rénovation et extension d'une maison du début du 20ème siècle

Réalisation de l'étude et du permis de construire

Le choix des matériaux et des couleurs et le rappel de certaines modénatures, permettent d'affirmer le caractère de la maison existante tout en apportant une touche de modernité.

  • Création d'une grande cuisine et salle à manger conviviale 
  • Réorganisation des étages pour des espaces dédiés aux enfants
Typologie Maison individuelle de 250 m²
Maître d’Ouvrage Privé
Mission Etude et Permis de Construire
Avancement Terminé